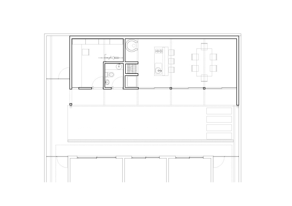
Ampliação Casa WZ
Ampliação de Arquitetura Residencial
Ano: 2011
Local: Ponta Grossa / PR
Equipe: Henrique Zulian, Eng. Carlan Zulian
Execução de obra: Eng. Carlan Zulian




Ampliação Casa WZ
Ampliação de Arquitetura Residencial
Ano: 2011
Local: Ponta Grossa / PR
Equipe: Henrique Zulian, Eng. Carlan Zulian
Execução de obra: Eng. Carlan Zulian







