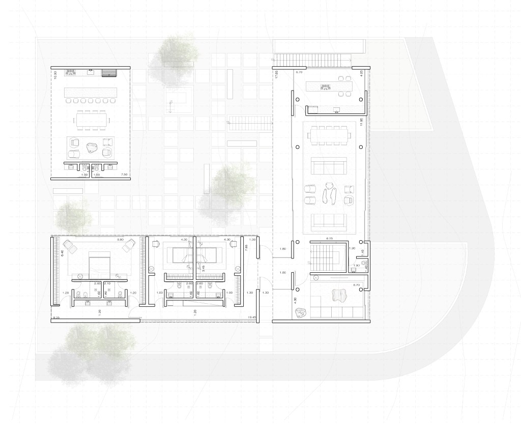
Casa em Bebedouro
Arquitetura Residencial
Ano: 2019
Local: Bebedouro / SP
Coautoria: Sessa Arquitetos
Equipe: Henrique Zulian, Luciano Sessa
Casa em Bebedouro
Arquitetura Residencial
Ano: 2019
Local: Bebedouro / SP
Coautoria: Sessa Arquitetos
Equipe: Henrique Zulian, Luciano Sessa






