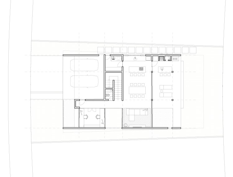
Casa NB

Casa NB

Arquitetura Residencial
Ano: 2020
Local: Barra dos Coqueiros / SE
Equipe: Henrique Zulian, José Pedro Raccanello