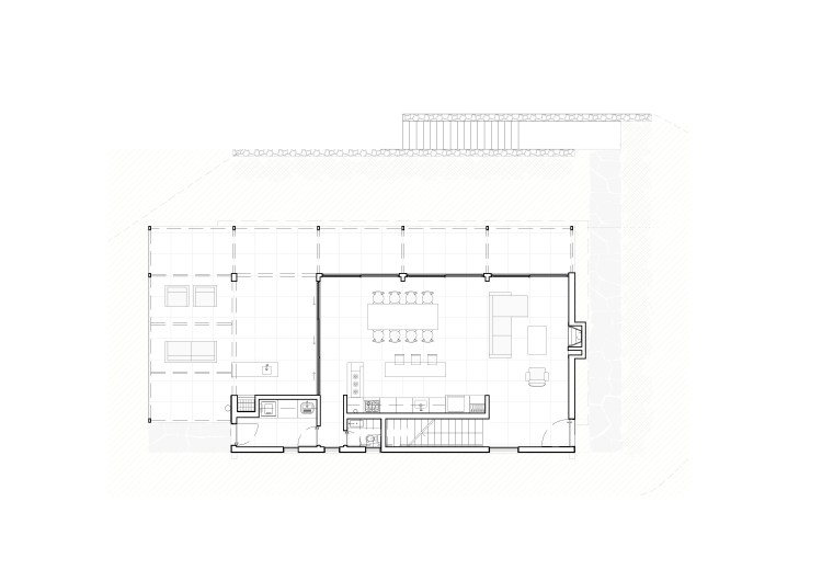
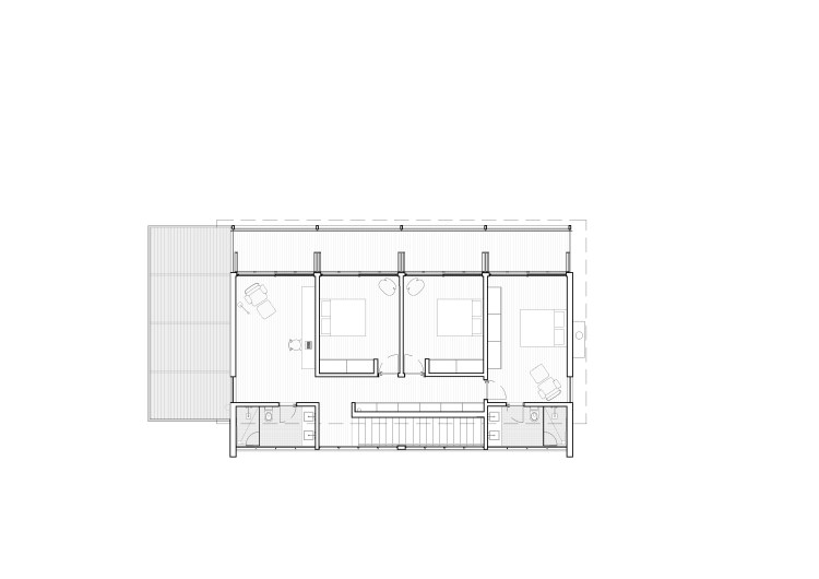
Casa OL

Casa OL

Arquitetura Residencial
Ano: 2013
Local: Rancho Queimado / SC

Equipe: Henrique Zulian, Talita Broering