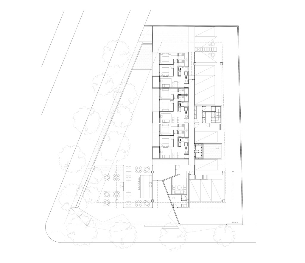
Edifício Residencial _ Weefor
Arquitetura Residencial
Concurso Nacional de Arquitetura
Ano: 2019
Local: Curitiba / PR
Equipe: Henrique Zulian, Luciano Sessa
Edifício Residencial _ Weefor
Arquitetura Residencial
Concurso Nacional de Arquitetura
Ano: 2019
Local: Curitiba / PR
Equipe: Henrique Zulian, Luciano Sessa









