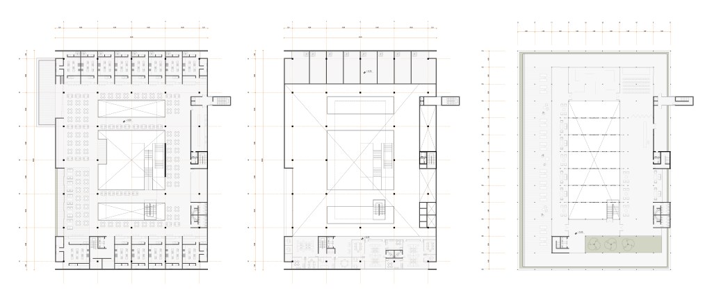
Mercado Municipal de Ponta Grossa
Arquitetura de Edifício Cultural
Concurso Nacional de Arquitetura: Projeto premiado em 1° lugar
Ano: 2021
Local: Ponta Grossa / PR
Equipe: Henrique Zulian, José Pedro Raccanello
Mercado Municipal de Ponta Grossa
Arquitetura de Edifício Cultural
Concurso Nacional de Arquitetura: Projeto premiado em 1° lugar
Ano: 2021
Local: Ponta Grossa / PR
Equipe: Henrique Zulian, José Pedro Raccanello















