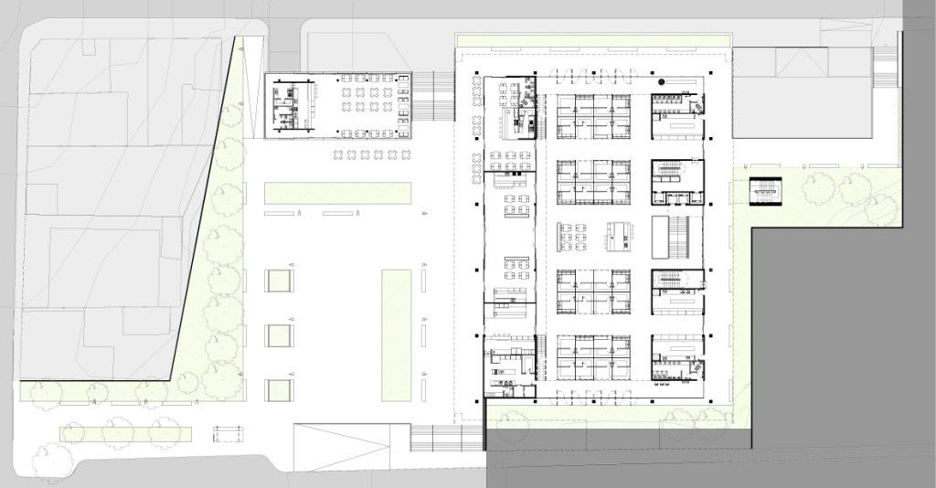
Mercado Municipal de Ponta Grossa
Arquitetura de Equipamento Cultural
Concurso 23° Ópera Prima: Projeto premiado com Menção Honrosa
Ano: 2011
Local: Ponta Grossa / PR
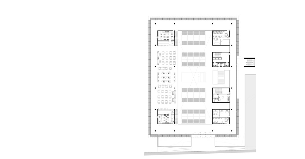
Mercado Municipal de Ponta Grossa
Arquitetura de Equipamento Cultural
Concurso 23° Ópera Prima: Projeto premiado com Menção Honrosa
Ano: 2011
Local: Ponta Grossa / PR











